Al 23 jaar de grootste gratis online marktplaats!
Berichten
Account
+
Plaats advertentie
Alle rubrieken
Agrarisch
Antiek en Kunst
Audio, TV en Foto
Auto's
Auto-onderdelen
Auto diversen
Boeken
Beauty en Gezondheid
Bedrijfspanden
Caravans en Kamperen
Cd's en Dvd's
Computers en Software
Contacten en Berichten
Diensten en Vakmensen
Dieren en Toebehoren
Doe-het-zelf en Verbouw
Erotiek
Erotieklijnen
Fietsen en Brommers
Hobby en Vrije tijd
Huis en Inrichting
Huizen en Kamers
Kinderen en Baby's
Kleding | Dames
Kleding | Heren
Motoren
Muziek en Instrumenten
Paranormaal
Postzegels en Munten
Sieraden, Tassen en Uiterlijk
Spelcomputers, Games
Sport en Fitness
Telecommunicatie
Tickets en Kaartjes
Tuin en Terras
Vacatures
Vakantie
Verzamelen
Watersport en Boten
Witgoed en Apparatuur
Zakelijke goederen
Diversen
Alle afstanden...
< 5 km
< 10 km
< 15 km
< 25 km
< 50 km
< 75 km
< 100 km
< 150 km
Zoeken
Rubrieken
Tuin en Terras
Tuinaanleg en Decoratie
Bielzen en Borders
Fonteinen en Waterpartijen
Gaas en Afrastering
Hekken en Schuttingen
Kunstgras
Sierstenen en Rotsen
Tuinbeelden en Tuinkabouters
Tuindecoratie
Tuingereedschap
Tuinhout en Palen
Tuinslangen
Verlichting
Zwembaden en Spa's
Vijvers en Toebehoren
Zwembaden | Toebehoren
Bloemen en Planten
Bloembakken
Bloembollen en Zaden
Bloemen en Planten
Bloempotten
Bomen en Struiken
Kassen en Kweekspullen
Huisjes en Meubelen
Parasols en Partytenten
Tuinhuisjes en Blokhutten
Tuinmeubelen
Veranda's en Overkappingen
Zonneschermen
Tuinmeubelen | Toebehoren
Bodem en Grond
Aarde en Zand
Gras en Kunstgras
Mest en Plantenvoeding
Tegels en Terrasdelen
Grasmaaiers
Cirkelmaaiers
Elektrische Maaiers
Grasmaaier Onderdelen
Grasmaaiers
Grastrimmers
Handmaaiers
Kooimaaiers
Maairobots
Motormaaiers
Verticuteermachines
Zitmaaiers
Bomen
Fruitbomen
Olijfbomen
Palmbomen
Sparren en Dennen
Gereedschap
Bladblazers
Heggenschaar
Hogendrukreinigers
Kettingzagen
Scrobmachines
Water stofzuigers
Werktuigen
Herinnering
Grafdecoratie
Tuinplanten
Fruitplantjes
Groenteplantjes
Klimplanten
Sierplanten
Struiken
Tuinverlichting
Grondspots
Led-Verlichting
Sensorlampen
Solarlampen
Staande Lampen
Wandlampen
Tuinaccessoires
Barbecues en Vuurkorven
Brievenbussen
Buitenkeukens
Deurmatten
Droogmolens en Wasrekken
Openhaardhout
Regentonnen
Terrasverwarmers
Overige
Werkkleding
Onderdelen en Accessoires
Overige Tuin en Terras
Rubrieken
Rubrieken
×
Home
-
Tuin en Terras
-
Tuinhuisjes en Blokhutten
- Tuinhuis Dominica--PROMOTIE--
Je link hier plaatsen
Tuinhuis Dominica--PROMOTIE--
sinds
6-10-2025 14:28:44
Kopieer link
prijs: € 6755
Locatie
:
Meeuwen-gruitrode
(Buitenland)
Kenmerken
Staat
: Nieuw
Beschrijving
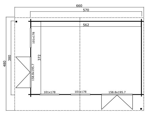
Het modern vormgegeven Tuinhuis Dominica van het merk Lasita Maja heeft een fundamentmaat van 570cm(b) x 380cm(d). Dit tuinhuis heeft aan de voorzijde en aan één zijkant een oversteek van 80cm. De 40mm dikke vurenhouten wanddelen zijn uitgevoerd met een dubbele veer en groef en een wind en waterkerende hoekverbinding. De traditionele blokhut-stapelbouw methode zorgt voor een zeer sterke en stabiele constructie. Dit bijzondere tuinhuis met haar twee openslaande dubbele deuren en de drie draai/tuimel ramen is bijzonder geschikt als tuinkamer, logeerverblijf of als tuinkantoor. De deuren en ramen zijn uitgevoerd met isolatieglas en aluminium dorpelstrips. Door de meegeleverde houten vloer staat het tuinhuis vrij van de ondergrond waardoor deze van binnen droog en schoon blijft. De vloerconstructie bestaat uit hogedruk geïmpregneerde onderliggers (70x45mm) en vuren vloerdelen voorzien van veer en groef (90x18mm). De vloerdelen voor buitengebruik zijn verduurzaamd door impregnatie en hebben een lichtgroene kleur. Het basispakket wordt geleverd inclusief montagehandleiding, onderdelenlijst, alle benodigde bevestigingsmaterialen, deur- en raambeslag en een houten windankerset. Dakbedekking is optioneel bestelbaar. Het stapelbouw blokhut systeem is door de handige doe-het-zelver prima zelf te monteren en dit tuinhuis wordt als bouwpakket bij u thuis geleverd.
GRATIS THUISLEVEVERING IN HEEL BELGIË EN NEDERLAND (m.u.v. Waddeneilanden).
Eigen plaatsingsdienst.
Kenmerken: Staat: Nieuw, Kopen in Meeuwen-Gruitrode
Stuur bericht
Advertentienummer: 120018864
Meld aan Aanbodpagina